9615508234

Venta de Lotes Industriales en Santa Catarina NL

Industrial Santa Catarina, Santa Catarina, Nuevo León

  • Terreno industrial
  • 860 m² de terreno
  • $4,600 MXN por m² En Venta

Descripción

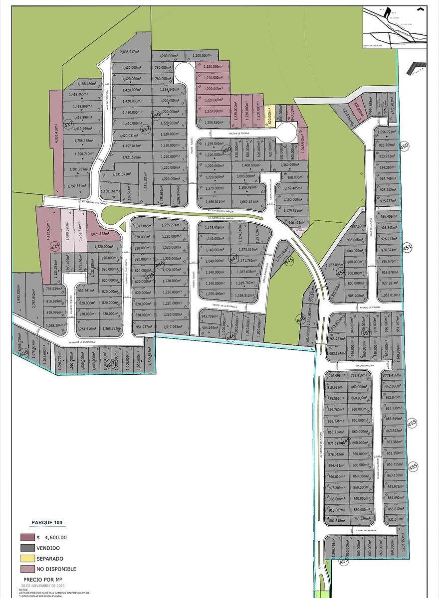
PARQUE 100
Terrenos Industriales en Venta!!
Santa Catarina N.L.
Listos para escriturar!!

Contamos con Lotes desde 820 m2
1200 m2
1800 m2
2700 m2 hasta 4100 m2.

El costo por m2 es de $4,600 pesos el m2.

Terrenos Parque 100 Santa Catarina, son lotes para uso industrial con servicios públicos, energéticos de media tensión y amenidades.
Para bodegas industriales y oficinas.

Parque 100 cuenta con:
Alta plusvalía.
Seguridad y fácil acceso.
amenidades y áreas comunes.
Cuenta con Bussines Center equipado con sala de juntas y pantallas de proyección.
Wifi de alta velocidad.
Área de comedor y café.
Área de co-working.
Área para eventos.
Cuenta con todos los servicios.

Parque 100 contará con accesos controlados y vigilancia 24/7, al igual tendrá un app de administración para el tema de mantenimiento.
Listos para escriturar
Información

Características

Exterior
  • Facilidad para estacionarse
General
  • Circuito cerrado
  • Seguridad 24 horas
Recreación
  • Salón de usos múltiples

Detalles

ID:EB-LI3511
Tipo:Terreno industrial
Precio de venta: $4,600 MXN por m²
Antigüedad:A estrenar
Terreno:860 m²
Fondo del terreno:50 m
Frente del terreno:25 m