9615508234

Renta: Oficinas de 146 m2 (#201) en Renta en Paseo 60

Mérida Centro, Mérida, Yucatán

  • Oficina
  • 8 baños
  • 146.26 m² de construcción
  • $51,100 MXN En Renta

Descripción

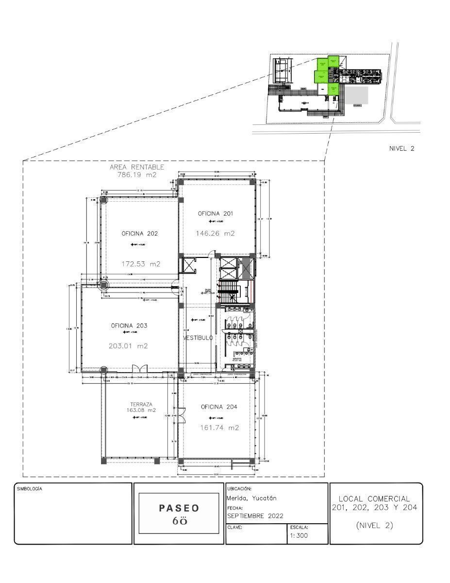
En renta Oficina 201 ubicada en piso 2 de Paseo 60 cuenta con un total de 146.26 m2.

La oficina se entrega con instalación de piso, baño compartidos, tuberías para adecuaciones de instalación hidráulica, sanitaria, voz y datos, eléctrica y AA.

Oficina: 146.26 m2

Renta Mensual: $350 por m2
- $51,100.00

Cuota de Mantenimiento 12% del valor de renta




La cuota de mantenimiento incluye:

• Limpieza de áreas comunes
• Vigilancia áreas comunes y estacionamiento
• Luz área comunal
• Fumigación área común
• Agua área común
• Publicidad en medios y redes sociales
• Jardinería espacios comunales
• Uso de Motor Lobby como espacio vehicular de transición
• Actividades y eventos
• Planta de tratamiento de aguas residuales
• Terraza sin costo de renta
• Mantenimiento a Elevadores y Escaleras eléctricas
• Sistema de CCTV en espacios comunales

Características

Exterior
  • Patio
  • Terraza
General
  • Accesibilidad para adultos mayores
  • Circuito cerrado
  • Elevador
  • Fraccionamiento privado
  • Oficina
  • Seguridad 24 horas

Detalles

ID:EB-UU4804
Tipo:Oficina
Renta: $51,100 MXN
Baños:8
Estacionamientos:4
Construcción:146.26 m²
Piso:2