9615508234

NAVE INDUSTRIAL 800 M2 EN CASTELLI PARK MÉRIDA

Mérida, Mérida, Yucatán

  • Nave industrial
  • 800 m² de construcción
  • 800 m² de terreno
  • $74,500 MXN En Renta

Descripción

Ideal para almacenamiento y producción, ubicada en el corredor Mérida–Tetiz, zona de mayor crecimiento.

La nave 46 proporciona la combinación perfecta entre infraestructura moderna, ubicación estratégica y certeza jurídica.
Ubicación estratégica:
• 4 km del Periférico.
• 2.8 km del nuevo Anillo Vial Metropolitano.
• 14 km del aeropuerto.
• 40 km de Progreso y conexión al Tren Maya.

Infraestructura moderna con certeza jurídica:

• Uso de suelo: Industrial, comercial y mixto.
• Manifestación del impacto ambiental.
• Autorización de la secretaria del medio ambiente.
• Autorización para el desarrollo inmobiliario.
• Desarrollo con régimen de propiedad en condominio.
• Licencia de construcción.
• Factibilidades autorizadas: CONAGUA, SCT, CFE, SEMARNAT
• Conexión de gas natural a pie de carretera

EN CASTELLI PARK ENCONTRARÁS NAVES INDUSTRIALES INDEPENDIENTES EN PREVENTA, VENTA Y RENTA

Te acompañamos en la selección del espacio ideal.

De forma independiente, desarrollamos la planeación de las adecuaciones y construcción, así como la gestión de la licencia de funcionamiento.

CARACTERÍSTICAS PROPIAS DE LA NAVE:

• 800 m² de terreno en propiedad
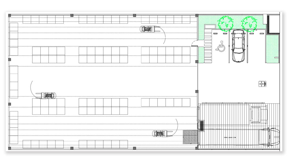
• 560.00 m² techados con estructura tipo arco techo y hasta 10 m de altura, brindando espacios amplios, funcionales y listos para potenciar tu operación.
• 240.00 m² distribuidos en andenes, área de maniobras y estacionamientos
• Pisos de alta resistencia para operación industrial
• Cortinas metálicas enrollables con preparación para automatización
• Preparación para la integración de rampas mecánicas, así como mini dock en andenes de carga y descarga.
• Infraestructura a pie de lote con instalaciones listas: red eléctrica subterránea trifásica en media tensión (CFE)
• Nave industrial equipada con cisterna y planta de tratamiento
• Sistema pluvial con pozos de infiltración
• Preparaciones hidrosanitarias disponibles para la adecuación de oficinas, comedor y núcleos sanitarios dentro de la nave, facilitando la adaptación a las necesidades operativas del usuario.
• Funcionales áreas verdes
• Espacios configurables y preparados para crecimiento

AMENIDADES, CASTELLI PARK:

• Urbanización de primer nivel, incorporando tecnologías sustentables en armonía con el medio ambiente
• Área de comedor para personal operativo (en construcción)
• Trailer park
• Áreas para estacionamientos
• Hotel para personal operativo
• Centro de negocios (en construcción)
• Control de acceso 24/7, los 365 días del año
• CCTV
• Iluminación solar urbana

Contáctanos y descubre las ventajas de operar en un parque industrial de primer nivel, diseñado para impulsar tu crecimiento y rodeado de empresas líderes.

Características

Exterior
  • Andén
  • Facilidad para estacionarse
General
  • Accesibilidad para personas con discapacidad
  • Rampas
  • Seguridad 24 horas

Detalles

ID:EB-UF8675
Clave interna:NAVE46
Tipo:Nave industrial
Renta: $74,500 MXN
Antigüedad:A estrenar
Construcción:800 m²
Terreno:800 m²
Pisos:1