9615508234

Renta Nave Industrial 606 m² en Castelli Park Mérida,Yucatán

Mérida, Mérida, Yucatán

  • Nave industrial
  • 360 m² de construcción
  • 606.15 m² de terreno
  • $65,000 En Renta

Descripción

La mejor ubicación de parques industriales en Mérida,Yucatán.
Nave industrial en renta lista para operar en diciembre y con todos los permisos en regla en Castelli Park, el parque industrial con acceso inmediato al Periférico y al Anillo Vial Metropolitano, así como a las principales rutas logísticas que conectan al sureste con el mundo.
Nave industrial configurable con posibilidad de integrar oficinas ejecutivas, sistemas contra incendio y CCTV, etc.

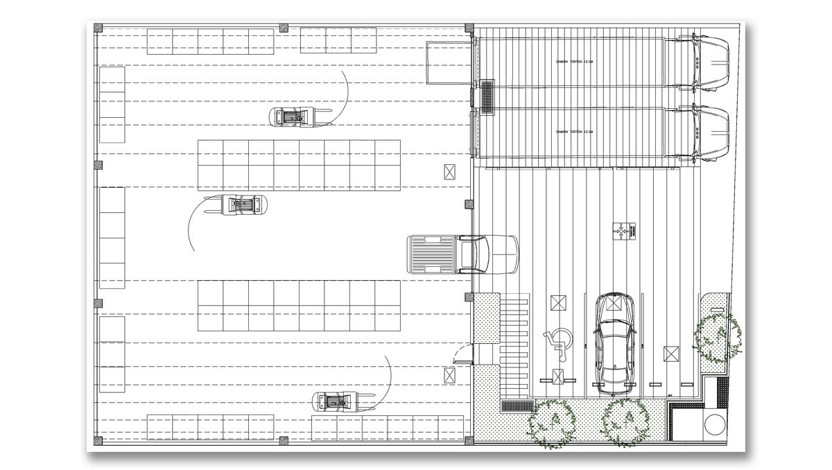
Características de la nave:
• Terreno privado 606.15 m2
• Nave 360 m2
• Patio de maniobras y servicios 246.15 m2
• Altura máxima 10m
• Pisos MR de alta resistencia
• Servicios independientes por nave (agua, acometida eléctrica en tres fases, fibra óptica)
• Patios de maniobras con posibilidad de cerca perimetral
• Cajones de estacionamiento independientes para vehículos
• Preparaciones para oficinas con comedor y núcleos sanitarios
• Rampa para carga y descarga
• Cortinas enrollables mecánicas

Beneficios del parque:
• Urbanización de primer nivel
• Control de acceso
• Vigilancia 24/7
• Vialidades con asfalto
• Iluminación urbana solar
• Energía eléctrica en media tensión trifásica
• Drenaje pluvial (Recarga de mantos acuíferos)
• Fibra óptica
• Red de agua potable
• Hotel operativo

En Castelli Park no solo adquieres una inversión estratégica, sino un modelo integral de soluciones ilimitadas diseñado para acompañarle desde el inicio hasta la consolidación de su proyecto.

Contáctanos hoy y agenda tu visita.

Características

Exterior
  • Andén
  • Facilidad para estacionarse
General
  • Accesibilidad para personas con discapacidad
  • Rampas
  • Seguridad 24 horas

Detalles

ID:EB-UG5302
Clave interna:51
Tipo:Nave industrial
Renta: $65,000
Antigüedad:A estrenar
Estacionamientos:3
Construcción:360 m²
Terreno:606.15 m²
Pisos:1