9615508234

RENTA DE BODEGA EN PARQUE INDUSTRIAL EN TORREON COAHUILA

Torreón 2000, Torreón, Coahuila

  • Bodega industrial
  • 6,034 m² de construcción
  • 12,793 m² de terreno
  • US$ 7.20 por m² En Renta

Descripción

Renta de nave industrial parque en industrial en Torreón Coahuila

Precio de renta de $7.20 USD. por m2 de renta.

Mas los impuestos correspondientes mas la cuota de mtto.

FICHA TÉCNICA :

Características del Inmueble
Nave Industrial –

Especificaciones del Inmueble – SPEC I – VTIP
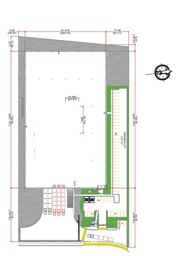
• Área de Terreno: 12,793 m² (137,703 ft²)
• Área Construida: 6,034 m² (64,953 ft²)
• Área de Expansión de Terreno: 12,113 m² (130,383 ft²)
• Área de Expansión de Construcción: 7,966 m² (85,750 ft²)
• Altura Libre: 9.14 m (30’)
• Estacionamiento: 48 cajones
• Andenes: 3 andenes + 2 rampas
• Rampas: 1 rampa de concreto
• Tamaño de Bahía: 10.20 m x 24.17 m
• Estructura del Edificio: Marco rígido de acero
• Material de Muros: Concreto precolado.
• Material de Techo: Lámina engargolada (Standing Seam)
• Tragaluces: ~4% del área
• Espesor del Piso: 15 cm (6”)
• Subestación: Según necesidades del cliente
• Caseta de Vigilancia: 9.90 m² (106.56 ft²)

Características

Exterior
  • Andén
  • Facilidad para estacionarse
  • Muelle de carga
  • Patio
General
  • Seguridad 24 horas

Detalles

ID:EB-UI8584
Tipo:Bodega industrial
Renta: US$ 7.20 por m²
Antigüedad:2025
Estacionamientos:48
Construcción:6,034 m²
Terreno:12,793 m²
Pisos:1