9615508234

Preventa de Departamento tipo Loft en Ex- Hacienda en Mérida Yucatán

Ticopó, Acanceh, Yucatán

  • Departamento
  • 1 recámara
  • 1 baño
  • 30 m² de construcción
  • $1,117,512 MXN En Venta

Descripción

La hacienda se ubica a 13 kilómetros del periférico de la Ciudad de Mérida por la Utopista hacia Cancún, es decir a tan solo 25 minutos en automóvil del centro de de Mérida y 30 min. del Aeropuerto internacional.
El casco de la hacienda es del siglo XVIII y actualmente esta restaurado, en el se realizan residencias de arte, cursos, retiros holísticos, conferencias y de mas eventos.

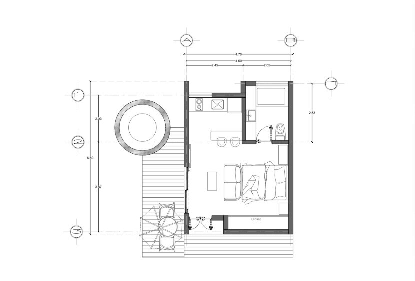
El proyecto esta ubicado en el lote 74 del área comercial de la Hacienda. Cuenta con 18 Lofts de aproximadamente 30m2 interiores, además de terrazas, Jardines y áreas comunes con diversas amenidades . Incluye estacionamiento y una alberca.
La venta se realizará a través de escrituración tradicional mediante régimen de condominio.

30m2 interiores mas terraza.
El terreno es irregular, con un perfil tipográfico que no presenta desniveles.

Distribución general
° Sala de estar y dormitorio. Espacio acogedor con mobiliarios cómodo y ventanas grandes .
° Cocineta. Equipada con electrodomésticos modernos y suficiente espacio de almacenamiento, integrada visualmente con la sala de estar.
° Baño completo
° Terraza exterior que se extiende, brindando un espacio para relajarse.

Amenidades.
° Alberca
°Jacuzzi
° Mesa de juegos
° Áreas comunes
° Estacionamiento
° Vigilancia

FECHA DE ENTREGA : SEPTIEMBRE 2026

Formas de pago:
° Recurso propio
° Apartado $10,000 ( 10 días devolutivo)
° Enganche : 33 % y 90%

Opción a la medida.

Características

General
  • Cocina
  • Seguridad 24 horas
Recreación
  • Alberca
  • Área de juegos infantiles
  • Jacuzzi

Detalles

ID:EB-UN2944
Tipo:Departamento
Precio de venta: $1,117,512 MXN
Antigüedad:En construcción
Recámaras:1
Baños:1
Construcción:30 m²