9615508234

LOCAL - COMERCIAL EN VENTA

Industrial, Mexicali, Baja California

  • Local comercial
  • 1 baño
  • $12,655,164 MXN En Venta

Descripción

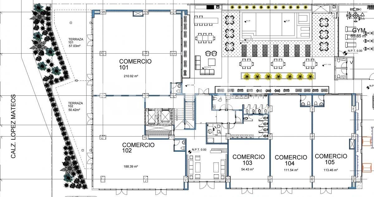
ÁGORA HIGH LIFE

Ágora High Life es una torre de uso mixto está ubicado entre Calle Calafia y Avenida de los Héroes, sobre Boulevard López Mateos.

Dispone de dos niveles de comercio, dos niveles de oficinas y ocho niveles habitacionales. El edificio ofrece dos elevadores, estacionamiento de tres niveles.

---
Áreas comunes del complejo.
El complejo cuenta con áreas comunes para uso exclusivo de sus residentes y usuarios, entre las que se incluyen alberca, gimnasio, lobby, terraza, rooftop de uso común, áreas de entretenimiento, zona de ascenso y descenso vehicular y elevadores.

-----

Locales comerciales disponibles
Los locales comerciales se ubican en el primer nivel del desarrollo, con frente y exposición hacia vialidades principales.


UNIDAD 101
Uso comercial. Nivel uno.
Área construida de 210.919 metros cuadrados
Precio por metro cuadrado de $60,000 pesos
Precio total de 12,655,164 pesos

Características

General
  • Elevador
Recreación
  • Gimnasio

Detalles

ID:EB-VA4620
Clave interna:CLV663383-342
Tipo:Local comercial
Precio de venta: $12,655,164 MXN
Baños:1
Piso:1