Inmobitaria

  • 9615508234
  • inmobitaria.easybroker.com

Renta Nave Industrial 729 m² en Castelli Park Mérida,Yucatán

Mérida, Mérida

$70,480 For Rent

  • 3 Parking spaces
  • 400.52 m² total space
  • 729.11 m² Lot Size
  • 1 Floors
  • New Age
  • EB-UF9419 ID
Description

La mejor ubicación de parques industriales en Mérida,Yucatán.
Nave industrial en renta lista para operar en diciembre y con todos los permisos en regla
en Castelli Park, el parque industrial con acceso inmediato al Periférico y al Anillo Vial Metropolitano, así como a las principales rutas logísticas que conectan al sureste con el mundo.
Nave industrial configurable con posibilidad de integrar oficinas ejecutivas, sistemas contra incendio y CCTV, etc.

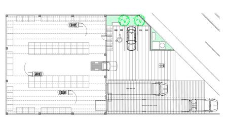
Características de la nave:
• Terreno privado 729.11 m2
• Nave 400.52 m2
• Patio de maniobras y servicios 328.59 m2
• Altura máxima 10m
• Pisos MR de alta resistencia
• Servicios independientes por nave (agua, acometida eléctrica en tres fases, fibra óptica)
• Patios de maniobras con posibilidad de cerca perimetral
• Cajones de estacionamiento independientes para vehículos
• Preparaciones para oficinas con comedor y núcleos sanitarios
• Rampa para carga y descarga
• Cortinas enrollables mecánicas

Beneficios del parque:
• Urbanización de primer nivel
• Control de acceso
• Vigilancia 24/7
• Vialidades con asfalto
• Iluminación urbana solar
• Energía eléctrica en media tensión trifásica
• Drenaje pluvial (Recarga de mantos acuíferos)
• Fibra óptica
• Red de agua potable
• Hotel operativo

En Castelli Park no solo adquieres una inversión estratégica, sino un modelo integral de soluciones ilimitadas diseñado para acompañarle desde el inicio hasta la consolidación de su proyecto.

Contáctanos hoy y agenda tu visita.

Amenities
  • Platform
  • Handicap accessible
  • 24 Hour Security

Inmobitaria

  • 9615508234
  • inmobitaria.easybroker.com

Inmobitaria

  • 9615508234
  • inmobitaria.easybroker.com